BARNHOUSE — Residential Project Proposal

Interior Architect, Lviv Region, Ukraine, 2021

A proposal for a small countryside retreat designed as a weekend rental and recreation space. The project reinterprets the traditional barn typology through a contemporary architectural and interior approach, combining rural simplicity with modern comfort.

The design features an elongated timber volume with exposed structure, open living areas, and generous glazing oriented toward the landscape. Inside, natural materials — wood, concrete, linen, and clay plaster — create a calm, tactile atmosphere connected to the surrounding fields and forest. The space is conceived for seasonal living, offering a sense of retreat and immersion in nature.

Developed to the concept and visualisation stage, the project explored how vernacular form and material honesty can be reimagined to create a modest, sustainable, and emotionally resonant space for temporary escape.

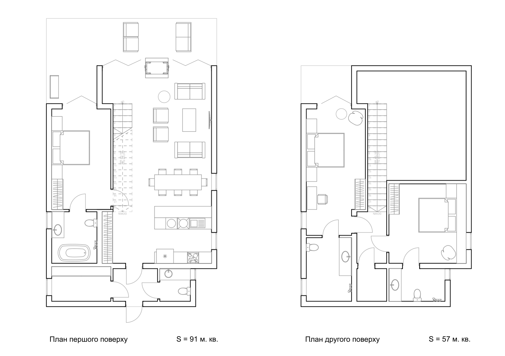
Layout Variations

Architectural Form Variations

Previous
Previous

Dunayska

Next
Next

Vynnyky